借りたい
賃貸物件を探す
買いたい
住宅や土地を探す
お知らせ
すーまるnetからのお知らせ
トピックス
取扱店からのお知らせ
不動産業者様へ
掲載やサイトについて
旭川の不動産・お部屋探し決定版!
「
借りたい
」「
買いたい
」 なんでもミツカル!
旭川の賃貸・不動産の売買情報「すーまるnet」
asahikawa.suumaru-net.com
旭川の不動産・お部屋探し決定版!
「
借りたい
」「
買いたい
」 なんでもミツカル!
借りたい
賃貸物件を探す
買いたい
住宅や土地を探す
お知らせ
すーまるnetからのお知らせ
トピックス
取扱店からのお知らせ
不動産業者様へ
掲載やサイトについて
参加取扱店|一覧をみる
|借りたい|
|エリアから探す|
|地図から探す|
|学校から探す|
|新着物件一覧|
|買いたい|
|マンション|
|一戸建|
|土地・収益物件|
|新着物件一覧|
◉
マイリストをみる
◉
すーまるnetについて
◉
物件の掲載について
◉
すーまるnetへのお問合せ
◉
ご利用規約
|買いたい|
物件詳細
マイリストに追加
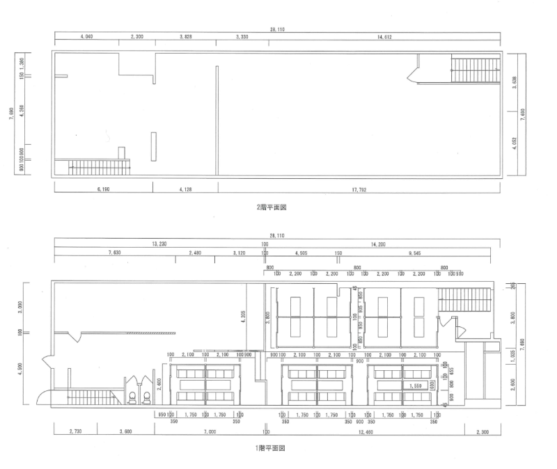
1棟テナント 4条通8丁目
4,200
万
円
商談中
所在地
旭川市4条通8丁目
築年
-1月
種別/階建
店舗(一棟)/地上2階建
面積
建物/359.04㎡ 土地/280.99㎡
交通
旭川電気軌道 「4条8丁目」 バス停徒歩1分
取扱・お問合せ
株式会社リアルター
0788212 旭川市2条通19丁目367番地
Tel.0166-25-7222
店舗詳細
ホームページ
メールでこの物件に問合せ
間取り
-
構造
木造
学校区
-
駐車場
無し
用途/地目
商業地域/宅地
引渡
即時
仲介手数料
1,452,000円
現況
空き
建ぺい/容積
建ぺい率80% 容積600%
接道状況
北西幅20.00mの公道に9.09m接道
取引態様
一般
コメント
◆買物公園沿い1棟売りテナント物件、視認性抜群の立地です!!
◆元居酒屋として使用されていました。賃料55万円で賃貸での募集もしています。
◆固定資産・都市計画税:349,900円
◆問い合わせは担当:藤原(080-5836-3937)までご連絡ください。
※築年数は不詳となります。
備考
-
設備等
-
メールでこの物件に問合せ
「すーまるnet」は参加店を随時募集中です!
すーまるnetについて
物件の掲載について
すーまるnetへのお問合せ
借りたい
| エリアから
| 地図から
| 学校から
| 新着物件一覧
買いたい
| マンション
| 一戸建
| 土地・収益物件
| 新着物件一覧
web特集
トピックス
不動産業者様へ
参加取扱店一覧
すーまるnetについて
物件の掲載について
すーまるnetへのお問合せ
ご利用規約
© Tokachi Mainichi Newspaper Inc.
マイリスト
履歴
閲覧履歴
検索履歴