借りたい
賃貸物件を探す
買いたい
住宅や土地を探す
お知らせ
すーまるnetからのお知らせ
トピックス
取扱店からのお知らせ
不動産業者様へ
掲載やサイトについて
旭川の不動産・お部屋探し決定版!
「
借りたい
」「
買いたい
」 なんでもミツカル!
旭川の賃貸・不動産の売買情報「すーまるnet」
asahikawa.suumaru-net.com
旭川の不動産・お部屋探し決定版!
「
借りたい
」「
買いたい
」 なんでもミツカル!
借りたい
賃貸物件を探す
買いたい
住宅や土地を探す
お知らせ
すーまるnetからのお知らせ
トピックス
取扱店からのお知らせ
不動産業者様へ
掲載やサイトについて
参加取扱店|一覧をみる
|借りたい|
|エリアから探す|
|地図から探す|
|学校から探す|
|新着物件一覧|
|買いたい|
|マンション|
|一戸建|
|土地・収益物件|
|新着物件一覧|
◉
マイリストをみる
◉
すーまるnetについて
◉
物件の掲載について
◉
すーまるnetへのお問合せ
◉
ご利用規約
|買いたい|
物件詳細
マイリストに追加
店舗 深川市北光町1丁目
8,800
万
円
所在地
深川市北光町1丁目3-1
築年
1990年12月
種別/階建
店舗(一棟)/地上2階建
面積
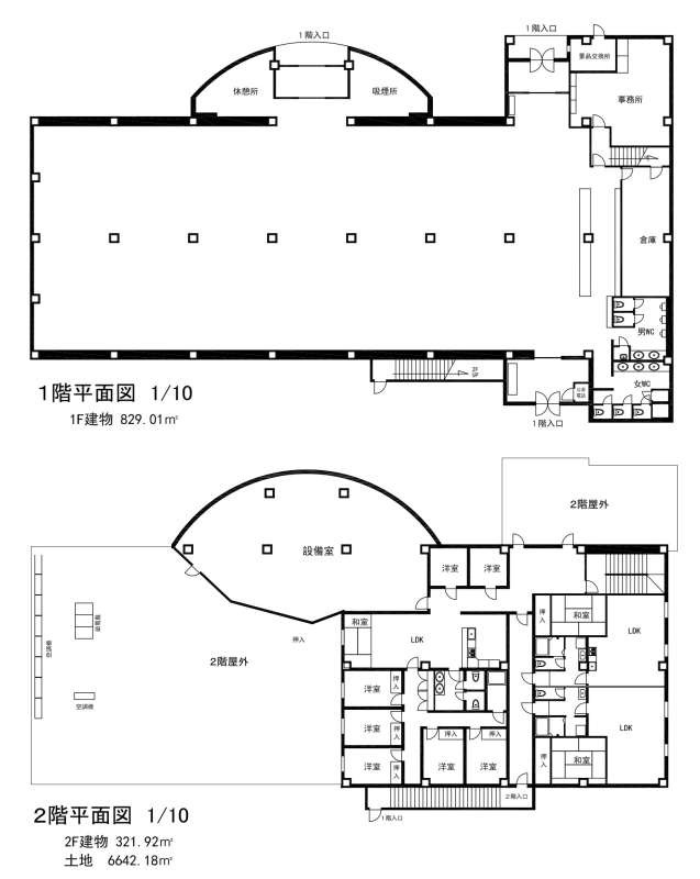
専有/0.00㎡ バルコニー/0.00㎡ 建物/1150.93㎡ 土地/6642.18㎡
交通
JR函館本線(小樽~旭川) 深川駅 徒歩5分
取扱・お問合せ
株式会社リアルター
0788212 旭川市2条通19丁目367番地
Tel.0166-25-7222
店舗詳細
ホームページ
メールでこの物件に問合せ
間取り
-
構造
鉄骨
学校区
深川市立一巳小学校 0.70km/深川市立一巳中学校 0.80km
駐車場
有り/0円/月額(駐車可能台数0台)
用途/地目
準工業地域/宅地
引渡
即時
仲介手数料
2,970,000円
現況
空き
建ぺい/容積
建ぺい率60% 容積200%
接道状況
西幅13.00mの公道に78.97m接道
南幅8.00mの公道に26.43m接道
北東幅15.50mの公道に87.39m接道
取引態様
一般
コメント
◆深川市北光町に大規模店舗物件が登場しました!JR深川駅から徒歩5分というアクセスの良い立地に加え、国道233号沿いという視認性の高さが魅力です。幹線道路沿いで視認性も高く、お客様を呼び込むのに最適です。
◆パチンコ店の居抜き物件として、アミューズメント施設など大規模な事業をお考えの方に特におすすめです。
◆建物1階店舗部分は平成25年10月内外装リノベーション済みです。
◆問い合わせは担当:藤原(080-5836-3937)までご連絡ください。
備考
-
設備等
複数路線利用可
幹線道路沿い
給排水設備
男女別トイレ
メールでこの物件に問合せ
「すーまるnet」は参加店を随時募集中です!
すーまるnetについて
物件の掲載について
すーまるnetへのお問合せ
借りたい
| エリアから
| 地図から
| 学校から
| 新着物件一覧
買いたい
| マンション
| 一戸建
| 土地・収益物件
| 新着物件一覧
web特集
トピックス
不動産業者様へ
参加取扱店一覧
すーまるnetについて
物件の掲載について
すーまるnetへのお問合せ
ご利用規約
© Tokachi Mainichi Newspaper Inc.
マイリスト
履歴
閲覧履歴
検索履歴